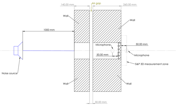
A A A Volume : 44 Part : 2 The study of the acoustical properties of a 3D printed noise barrier Grzegorz Szczepanski 1 Central Institute For Labour Protection - National Research Institute Czerniakowska 16, 00-701 Warsaw, PolandABSTRACT According to the data of the Statistic Poland, noise is the most common harmful factor in the working environment in Poland. In 2020, the number of persons exposed to noise was 181.7 thousand person. Reducing the noise hazard is primary objective of vibro-acoustic research, and modern technology allow for the realization of this goal in many ways. The basic and the most important technical measures to reduce the noise exposure of workers is to place noise absorbing or reflecting materials in the workplace. One of the unconventional possibilities to produce this type of elements is to use Fused Deposition Modelling method. This makes possibility to manufacture the noise barriers with advanced internal structures which can reduce the noise transmission or manipulate the propagation of the sound wave. The article describes the study of the acoustic properties of the noise barrier made with a 3D printer. The influence of various 3D printing settings on the obtained acoustic properties of the barrier was investigated. By measuring the acoustic pressure level and the particle velocity in three directions, the acoustic properties of the created barrier were determined.1. INTRODUCTIONNoise remains the main harmful factor of the working environment in Poland. For the last 5 years, no clear downward trend of this factor has been observed. Statistical data collected by the Statistics Poland indicate that in the years 2016-2021 [1-5] the number of persons exposed to noise ranges from 181,7 thousand people to 193.6 thousand people. One of the most commonly used measures to reduce noise emitted by machinery are sound-insulating enclosures or noise barriers [6] which belong to the group of passive noise measures.Rapidly developing 3D printing technology is increasingly used to create noise control solutions. Examples of such works can be found widely in the literature[7-9]. Frosting et al. [10] describe the results of the research on the absorption coefficient and acoustic impedance of samples in the form of 30 mm discs produced by means of 3D printing from thermoset resin. Honeycomb structures with a perforated face, which were produced using the additive manufacturing technique, were also investigated [11]. 3D structures on gypsum-based were also created and tested [12]. In one of the recent works the tunable network sound absorber were developed and tested [13].This article presents research into the impact of 3D printing settings on the sound-insulating properties of the barrier.1 grszc@ciop.pl 2. SAMPLESThe study of the influence of printing parameters on the acoustic parameters required the preparation of a unified sample. The models of noise barriers with two rows of rounded elements intended for studies were prepared with using SolidWorks software. The front wall width of noise barrier was 0.8 mm. Behind the second row of rounding there was a solid structure, where the print parameters were modified for each sample. Each row of rounded elements contained 4 holes with diameter of 5 mm. The parameters such as internal fill pattern, interior fill percentage and internal infill angle offsets were tested. Figure 1 shows the dimensions of the noise barrier samples.Figure 1: The dimensions of the noise barriers used in the research.In Table 1 the print settings of each sample are shown. Sample with ID1 was taken as the reference sample where no volume filling was defined.Table 1: Print settings for each sample.ID Internal FillInterior FillInternal Infill AnglePatternPercentageOffsets1 - 0 -2 Fast Honeycomb10% 0°, 30°, 45°, 60°3 Full Honeycomb20% 0°, 120°, -120°4 Fast Honeycomb20% 0°, 10°, 20°, 30°5 Rectilinear 20% 45°, -45°6 Wiggle 20% 0°000mm 140,00 mm 5x81420mm 4x5 9500mm a 5825.00 mm . . - . The 3D CAD model of the samples was created with the SolidWorks software. The CAD model was then processed using the Simplify3D software, where the files were exported to a 3D printer. Physical models were made of PLA on an FFF printer with nozzle diameter 0.8 mm The view of final noise barriers were presented in Figure 2.123456Figure 2: View of the samples of sound barriers used in the research. 3. MEASUREMENT STANDThe studies of acoustic parameters of noise barriers were carried out with the use of a small window in the reverberation chamber. The chamber consist on a double wall divided by an air chamber with a total width of 430 mm. Inside the chamber a loudspeaker as the source of the excitation signal were placed. The loudspeaker was about 1 meter from the window. Pink noise was used as the excitation signal. A simplified diagram of the measurement stand is presented in Figure 3.Figure 3: Simplified diagram of the measurement stand.aooomm (M990 -26000em wot 1000 mm [ pal ee ea \secoonene ~—~saP 20 mecsurement one Noise source! Wal In all studies the excitation signal level was constant. The tests were performed using the Pulse system, including 3-channel measurement module (type 3052-A-030) with TEDS microphone (type 4191) and Scan & Paint 3D (S&P3D) including USP probe (which allow for direct measure particle velocity in three orthogonal directions and sound pressure level).Measurements with using Pulse system were performed in front of and behind the noise barrier samples at a distance of 50 mm. The duration of the measurement was set at 30 seconds. The measurement with S&P 3D system were taken only behind the barrier in the smallest distance from it (5 mm – 50 mm). The duration of the measurements with the Scan & Paint 3D system was 20 minutes.4. RESULTSThe result of the sound pressure level measurement made with the microphone placed in the window of the reverberation chamber on the excitation side was 81.97 dB (when the sample with ID 1 were placed). The result of the sound pressure level measurement made with the microphone placed on the receiving side (without placing the sample) was 80.7 (named as ID 0). For each sample the measurement of sound pressure level behind the barrier were taken. For each sample the insertion loss were calculated as the difference between measurement result for ID 0 the results of subsequent measurements for the samples. The results were presented in Table 2. Table 2: Results of equivalent continuous sound pressure level for noise barrier sample/without sample (ID 0) and calculated i nsertion loss value for each sample.ID L Aeq [dB] IL [dB]0 80.7 -1 75,9 -2 68,3 12,43 63,7 174 63,9 16,85 63,9 16,86 64,8 15,9The frequency analysis of the recorded signal samples was performed. The results for 3 samples with different infilling percentages are presented as graphs of the sound pressure level in 1/12 octave bands in Figure 4. ID0 (Real) ID1 (Real) ID2 (Real) ID4 (Real)70 [dB/20u Pa]^6050403016 31.5 63 125 250 500 1k 2k 4k 8k 16k [Hz]A LFigure 4: Sound pressure level in 1/12 octave band measured behind the noise carrier for 3different samples and without sample. The analysis of the spread of the data (the difference between the maximum and minimum value in the set) was performed for all models made with 20% infill. The results are presented in Figure 5.Figure 5: The spread of the measurement results for noise barriers with 20 % infill (in One-twelve octave band). Using the Scan & Paint 3D system, measurements were made in the area up to 5 cm from the noise barriers for ID1 and ID2 samples. The results were averaged for the entire volume covered by the measurement. The result is presented in Figure 6 and in the form of a visualization (Figure 7) of the particle velocity levels for an exemplary frequency equal to 1500 Hz. Figure 6: Particle velocity level behind the noise barrier with ID1 (red color) and ID2 (bluecolor).po | ( 8 8 8 3 F< 8 [ap] (s/w go-2g 24) Jane] Aoa, apmed 6000 4000 5000 3089, 2000 1000Figure 6: Particle velocity level distribution behind the noise barrier with ID2, frequency1500 Hz. 5. CONCLUSIONSThe article presents the results of research which show that the fill pattern have a small impact on the obtained sound pressure level behind the sound barrier for a broadband signal. The ID6 sample, where a wiggle was used as the filling pattern, obtained a slightly worse result than the other samples with 20% filling. For the identical sample filling with the material, the filling pattern used in the ID3 sample allowed to obtain a lower value of the sound pressure level by about 1 dB.The infill percentage of a sample has significant impact on the obtained test results. In almost the entire frequency band, the higher percent of infill caused a decrease in the value of the sound pressure level behind the barrier.The changes in the filling pattern were not significant in the case of the equivalent continuous sound pressure level measurement. However, it was decided to calculate the spread of the measurement results for noise barriers with 20 % infill. The differences between the maximum and minimum values for some bands were as high as 8 dB. The presented results prove that the filling pattern can have an impact on the effectiveness of the sound barrier adapted to a given narrowband noise.The results of measurements made with the S&P 3D system shown a reduction in the sound velocity level (above frequency 1500 Hz) in the case of samples with a infill greater than 0, but no additional directional noise effects were observed during the analyzes.6. ACKNOWLEDGEMENTSThis paper is published and based on the results of a research task carried out within the scope of the fifth stage of the National Programme “Improvement of safety and working conditions” supported from the resources of the National Centre for Research and Development.Task No. III.PB.05 entitled “Development of acoustic metamaterial for use in soundproofing systems to control noise in industrial environments”The Central Institute for Labour Protection – National Research Institute is the Programme’s main co-ordinator. 7. REFERENCES1. Główny Urząd Statystyczny/Central Statistical Office, Warunki Pracy w 2016 r./ WorkingConditions in 2016 , Warszawa/Warsaw, 2017, 2. Główny Urząd Statystyczny/Statistics Poland, Warunki Pracy w 2017 r./ Working Conditions in2017 , Warszawa/Warsaw, 2018, 3. Główny Urząd Statystyczny/Statistics Poland, Warunki Pracy w 2018 r./ Working Conditions in2018 , Warszawa, Gdańsk, 2019, 4. Główny Urząd Statystyczny/Statistics Poland, Warunki Pracy w 2019 r./ Working Conditions in2019 , Warszawa, Gdańsk, 2020, 5. Główny Urząd Statystyczny/Statistics Poland, Warunki Pracy w 2020 r./ Working Conditions in2020 , Warszawa/Warsaw, 2021, 6. Engel Z., Piechowicz J., Pleban D., Stryczniewicz L., “Hale przemysłowe, maszyny iurządzenia – wybrane problemy wibroakustyczne“, Centralny Instytut Ochrony Pracy – Państwowy Instytut Badawczy, Warszawa 2009 7. Di Giulio E., Auriemma F., Napolitano M., and Dragonetti R., Acoustic and thermoacousticproperties of an additive manufactured lattice structure, The Journal of the Acoustical Society of America 149, 3878-3888 (2021) 8. Goh G.D., Neo S.J.C., Dikshit V., Yeong W.Y.., Quasi-static indentation and sound-absorbingproperties of 3D printed sandwich core panels. Journal of Sandwich Structures & Materials. 24(2):1206-1225 (2022) 9. Yang W., Bai X., Zhu W., Kiran R., An J., Chua C.K., Zhou K., 3D Printing of PolymericMulti-Layer Micro-Perforated Panels for Tunable Wideband Sound Absorption, Polymers, (2020). 10. Fotsing, E.R., Dubourg, A., Ross, A., & Mardjono, J.N. Acoustic properties of periodic micro-structures obtained by additive manufacturing. Applied Acoustics , Vol. 148, 322-331 (2019). 11. Akiwate, D.C., Date, M.D., Venkatesham, B., & Suryakumar, S. Acoustic characterization ofadditive manufactured perforated panel backed by honeycomb structure with circular and non- circular perforations. Applied Acoustics , 155, 271-279 (2019). 12. Aslan, R., & Turan, O.Y., Gypsum-based sound absorber produced by 3D printing technology.Applied Acoustics , 161, 107162. (2020). 13. Zhao T., Chen Y., Zhang K., and Hu G., Tunable network sound absorber based on additivemanufacturing , The Journal of the Acoustical Society of America 150, 94-101 (2021) Previous Paper 182 of 808 Next