Welcome to the new IOA website! Please reset your password to access your account.

Acoustic improvements from elevated platforms for standing audiences in an indoor music venue Rebeca Sánchez-Villalobos, London South Bank University,103 Borough Road, LONDON, SE1 0AA, UK Luis Gomez-Agustina, London South Bank University,103 Borough Road, LONDON, SE1 0AA, UK

ABSTRACT The live music industry has grown significantly over the last decade, making live music not only an important component of the cultural scene but also a major economic engine. There is little research or guidance regarding acoustic design for amplified music venues, especially for improvements in the design of the indoor standing audience area. This investigation aimed to determine the acoustic effects and potential benefits, of elevated audience platforms in an indoor music venue. Objective parameters such as reverberation (T 30 ), Early Decay Time (EDT), Clarity (C 80 ), Definition (D 50 ), and Sound Pressure Levels (SPL) were analysed through computer simulations for twelve platform arrangements of different platform heights and audience densities. Results from all possible combinations were compared and evaluated for improved acoustical quality. It was shown that the use of elevated platforms reduced reverberation time parameters and successfully increased C 80 and D 50 . These changes in acoustic parameters appeared also to be dependent on audience density. It is expected that the novel information and guidance provided by this research will assist acoustic designers, sound engineers and other relevant decision makers to improve the audio - visual experience of standing audiences.

1. INTRODUCTION

The live music industry grew significantly over the last decade before coming to a standstill in 2020 due to the coronavirus pandemic. Approximately 30 million people in 2018 attended live music events in United Kingdom, and 29.1 million in 2017 (Statista Research Department, 2021). Music fans spend a lot of money to see their favourite artists play live, making live music not only an important component of the cultural scene but also a major economic engine (Statista Research Department, 2021). This is why there is a necessity to have more mid- and large-sized music indoor venues acoustically designed to accommodate the increasing demand of quality live music events.

Usually in indoor amplified music venues there is an area for seated attendees and a grand flat space for the standing-up audience. Often, the seated area provides a better view of the performance stage and more space between attendees. On the one hand, the standing-up area provides a less direct view of the performance stage, less comfortable conditions and it could be more difficult to manage in terms of security. On the other hand, more people can be accommodated standing up, therefore the

tt inter-ncie’” SCOTTISH evENT CAMPUS 3) O , o iLASGOW

capacity of an event can be increased. However, the experience of the standing audience can be improved by changing the design of this area.

The most relevant research found about the acoustic and architectural design for rock and pop venues was made by Adelman-Larsen (2014). The author presented some very intriguing findings from his extensive research on a wide range of rock and pop venues across Europe. It included information such as audience absorption, reverberation time design, relevant objective parameters and design principles for this type of venues. This information is key to support the decisions made for the indoor music venue under investigation. However, the use of platforms in the standing area is mentioned briefly and does not deepen on the acoustic effects that these platforms may have on a music venue.

This paper is an extract of a larger investigation that seeks to study the acoustic effects of elevated platforms on a standing audience. For this purpose, a previously made design of an indoor venue for amplified music was used. This design was created in 2014 as a final architecture graduation project (Sánchez, 2014), which included the use of three individual platforms with different heights (See Figure 1). The aim was to improve the audience experience by providing better sightlines without restricting the benefits that a flat audience area provides.

Figure 1: 3D view of elevated platforms for a standing audience

The aim of this investigation was thus to analyse the acoustic effects in the sound field that elevated platforms for a standing audience have in an indoor music venue by studying the results of objective acoustic parameters associated with the perceived clarity of sound, such as Clarity ( C 80 ) which focuses on music, and Definition (D 50 ) which focuses on speech intelligibility (Alton Everest, 2001), reverberation (T 30 ), perceived reverberance, which is correlated with Early Decay Time (EDT) and the Sound Pressure Levels (SPL).

2. METHOD AND PROCEDURE

The selected parameters were analysed through Geometric Acoustics computer simulations for twelve platform arrangements of different platform heights and audience densities. 2.1. The venue and the elevated platforms

The fan shape indoor venue analysed had an audience area with a length of 32 m, which is the maximum distance a person can perceive movements (Neufert, 2007). This number was used to

establish the length of the audience area and was divided by three to obtain three platforms of the same width (See Figure 2).

Figure 2: Design of the indoor venue (a) venue with flat audience area (b) venue with elevated platforms (c) plan view of the venue

To prove the effect of the platforms in the audience area, several scenarios were analysed by changing two factors: the height of the platforms and the audience density. The size, shape and materials of the hall remained as a constant throughout all the scenarios.

The density of an audience could vary between two to six people per square meter. The recommended maximum occupancy density for safety reasons in an indoor public space is four people per square meter (HSE, 1999). For the purpose of this investigation the audience densities considered are 0, 2, 4, and 6 people per square meter.

For this investigation three configurations were considered. The first one was having a completely flat audience area, to obtain a base of comparison between having or not having platforms. The second one was to use a difference of 50 cm between levels, and the third option was doubling this height (100 cm). Based on all the possible combinations between the height of the platforms and the audience density, twelve scenarios were established (See table 1).

Table 1: Scenarios (Sc) analysed

Sc

Sc

Sc

Sc

Sc

Sc

Sc

Sc

Sc

Sc 10

Sc 11

Sc 12 Number of Platforms 0 0 0 0 3 3 3 3 3 3 3 3

1

2

3

4

5

6

7

8

9

Difference in floor level (cm) 0 0 0 0 50 50 50 50 100 100 100 100

Audience density (pers/m²) 0 2 4 6 0 2 4 6 0 2 4 6

2.2. Audience representation

The dimensions, proportions, and measures of the average human body provide input to obtain the best representation of an audience to ensure accurate results of the computer simulations. The average height of the human in the United Kingdom is approximately 1,70 m (Gripp et al., 2013). The general dimensions of an average human were reduced to two volumes, as it is possible to visualize in Figure 3 (Gripp et al., 2013).

Figure 3: Simplified 3D model of a human

Modelling every audience member individually (a unit) for each scenario would have drastically increased the computational load necessary to produce the acoustic predictions. Hence it was decided to model only the possible attendees surrounding the selected listeners (receivers) that were analysed, in a 2 m radius. Furthermore, several units were merged in one volume, generating bigger blocks that simulate audience members were placed in rows in front and behind the receivers. The size of these volumes was determined according to the audience density.

Modelling the audience as blocks near the receivers would generate some acoustic barrier effect but it would be insufficient to simulate the amount of absorption generated by a venue at full capacity. This is why additional simple large volumes were modelled to simulate the rest of the audience (See Figure 4).

1.40m

Figure 4: Audience representation. Density: 4 pers/m². Left: plan view. Right: 3D view.

The absorption coefficients associated with a standing audience were based on a two- dimensional surface with a density of 2,7 pers/m². For this reason, the total audience surface area necessary for each density needed to be corrected so that the absorption coefficients would approximate the reality. The surface area necessary per density was calculated, and by subtracting the total surface area used by the simplified models of humans, the remaining surface area needed to model was obtained. Based on this information, the additional simple volumes were modelled. 2.3. Receivers

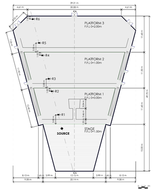
Since the music venue has a symmetrical floor plan, receivers were placed only on one side of the audience area (See Figure 5). Six receivers (R1 to R6) were deemed sufficient to provide enough coverage of the chosen half of audience area. Two receivers were placed per platform. The first one was placed 1 m away from the front of the railing of each platform and the second one was placed 1 m away from the back of each platform. These locations were selected to represent the best and the worst location in each platform. The receivers were placed in line with the sound source (See Figure 5).

Figure 5: Location of the receivers (R1 to R6)

The same number of receivers and locations were used along the twelve scenarios. The height of the receivers was 1,6 m from the ground level of each platform. This height was based on the location of the ears in relation to the average height of a human (Gripp et al., 2013). 2.4. Sound source

The type of sound source selected was a representative line array of loudspeakers. It was placed 4 m above the stage level, in line with the receivers and at the border of the stage. The line array selected was a default vertical stacked line array from CATT Acoustics, which has 4 cabinets. The line array was angled 25˚ towards the audience to avoid producing rays that would reach the back wall of the audience area directly. It was also tilted -14˚ in the horizontal plane to align with the receivers.

It was set to produce pink noise with an input of 25 dBV to reach similar sound pressure levels expected in a pop and rock concert (Adelman-Larsen, 2014). The gain was set to zero in all the frequencies. 2.5. 3D modelling and acoustic simulation

The geometrical models for the 12 scenarios were created using a 3D modelling software (Sketch Up, 2017). Each surface of the hall was classified into a specific category associated to a specific material. The selection of materials was made aiming to obtain a good distribution of absorbent materials in all the surfaces, in order to obtain short and fairly stable reverberation times in frequencies from 63 Hz to 4 kHz. The materials are associated to specific absorption coefficients needed to perform the computer simulations. Then, the 3D models were exported into CATT Acoustic files, where acoustic simulations were run (CATT Acoustic, 2016).

Every file contained information about the objective parameters analysed, which are Clarity ( C 80 ), Definition ( D 50 ), Reverberation Time (T 30 ), Early Decay Time (EDT), and Sound Pressure Levels (SPL) at each receiver location and at each frequency. The information per objective parameter was graphed and analysed. Discussion and conclusions were drawn based on this analysis.

3. RESULTS AND ANALYSIS 3.1. Reverberation time (T 30 )

In the case of T 30 , for the empty hall, it was possible to achieve values that were within the desired tolerance limits of 0.8 s to 1.2 s (NS 8178:2014) approximately at frequencies between 63 Hz to 4kHz. The increase in platform height reduced the reverberation times with values below the Just Noticeable Differences (JND) indicated in ISO 3382-1.

The classical acoustics (Sabine, Eyring) calculations estimated that the higher the absorption provided by increasing the number of audience members, the shorter the reverberation time (See Figure 6). However, it did not consider the placement of the audience members within the venue, which the ray-tracing method does include. The average T 30 values obtain in Figure 6 were obtained by using CATT Acoustic modelling software.

RT - SCENARIO 6

RT - SCENARIO 7

Avg T30 T-Eyring T-Sabine

Avg T30 T-Eyring T-Sabine

1,20

1,20

T30 (S)

T30 (S)

0,70

0,70

0,20

0,20

1 2 5 2 5 0 5 0 0 1 K 2 K 4 K 8 K

1 2 5 2 5 0 5 0 0 1 K 2 K 4 K 8 K

FREQUENCY (HZ)

FREQUENCY (HZ)

Figure 6: Changes in RT estimation with increases in audience densities. Scenario 6: 2 pers/m². Scenario 7: 4 pers/m²

Adding the audience factor generated variations in the results between using elevated platforms and using a flat audience area, where the biggest changes could be seen in the 500 Hz and 1kHz bands (See Figure 7). Since short RTs are needed for amplified music venues (NS 8178:2014), the additional T 30 obtained by implementing elevated platforms in the audience area can reduce the amount of absorption needed in other surfaces.

Sc 3 Sc 7 Sc 11

1,3

1,2

1,1

T30 (S)

1

0,9

0,8

0,7

1 2 5 2 5 0 5 0 0 1 K 2 K 4 K 8 K

FREQUENCY (HZ)

Figure 7: Changes in T30 due to audience density – 4 pers/m²

T 30 values were reduced when the audience density was increased (See figure 6). This can be due to the amount of effective absorption of the audience related to the exposure of the audience surfaces in the venue. A closely packed standing audience reduces the number of surfaces exposed to the rest of the venue (Adelman et al., 2010). In the case of a flat audience area, the surfaces expose will be the people on the first row and the top layer of the rest of the attendees, i.e., mainly heads and shoulders (Figure 8). This depends on the audience density since the many air gaps between attendees make the effective absorption surfaces increase (Kuttruff, 2016).

In addition, the aisles dividing the audience area increase the gap between attendees, and therefore the exposed surfaces also increase. As well, Kuttruff (2016) described that the data on audience absorption can change with factors such as occupancy density, audience exposure to incident sound, and the interruption of “blocks” by aisles and others.

In the case of a racked audience area, there is a front row per platform. By exposing the front surface of the attendees, the amount of effective absorption surfaces was increased as well (See Figure 8). Adelman-Larsen (2014) stated that attenuation of direct sound caused to grazing propagation over heads of the audience can be reduced or avoided by using platforms in the audience area, but this is considering exposed vertical surfaces in front of the platforms, that could be made of materials with absorption coefficients that counteract the attenuation of the audience. However, in the case of this study, the vertical surfaces did not seem to make a noticeable change in an empty hall.

Figure 8: Exposed audience surfaces in a racked audience area

The use of platforms changed the location of the attendees in the room, causing a different behaviour of the propagation of the sound in the room, without changing the average absorption percentages per frequency band, which remained almost identical in all the cases. The reduction in reverberation times due to the use of platforms can be considered during the design process of the hall, by reducing the amount of absorption materials in other surfaces. Since one of the goals in the design of amplified music venues is to maintain short reverberation times, the increase in attenuation by the audience could be beneficial.

The results also showed that doubling the audience density does not imply doubling the amount of absorption. This is consistent with the fact that a packed standing audience has less exposed areas, decreasing the effective absorption of every audience member (Adelman et al., 2010). Shabalina (2013) studied the absorption of a standing audience (per person) for different concentrations (0,5, 1,5 and 3,8 pers/m²) for frequencies between 31 Hz to 100 Hz. Although her study focused on low frequencies, the absorption coefficients obtained presented little variations with the increase of the audience density, which coincides with the results presented in this investigation.

Moreover, it was possible to notice a variation in the results when the audience density of 6 pers/m² was used. This variation could be explained due to possible limitations within the computer simulation software. The RT parameter for most of the scenarios that had this particular audience density had some missing data. Therefore, this parameter cannot be used as a realistic estimation. 3.2. Early Decay Time (EDT)

EDT predicted results showed that there were no major differences between the results of using platforms and using a flat audience area for the empty halls. All the results were below the recommended range of around 1.0 s to 3.0 s (BS EN ISO 3382-1, 2009), making this finding consistent with the recommended short RTs. However, when the audience factor was included, the results varied between scenarios, as listeners located in a platform had shorter EDTs compared to those at the ground level (See Figure 9). This finding highlights the importance of considering the audience when estimating EDTs, as variations may occur in dependence of the presence of platforms.

Moreover, increasing the audience density helped to stabilize the EDT results when platforms were used, as it was corroborated through the frequency analysis in most cases. Nonetheless, this aspect is worth of further investigation in the future.

DENSITY: 2 P/M2

DENSITY: 6 P/M2

Sc 2 Sc 6 Sc 10

Sc 4 Sc 8 Sc 12

1,00

1,00

0,80

0,80

EDT (S)

EDT (S)

0,60

0,60

0,40

0,40

0,20

0,20

0,00

0,00

1 2 3 4 5 6

1 2 3 4 5 6

RECEIVERS

RECEIVERS

Figure 2: EDT results according to the change in platform height and in audience density

In general, it was possible to obtain a considerable reduction in the EDT results for Receivers 3 and 4 by using platforms in the audience area (around 50 ms). These receivers were located in the second platforms, which was key in demonstrating the effects of the platforms. As expected, get similar results were obtained for Receivers 1 and 2, since their location and height remained a constant at all the scenarios. Receivers 5 and 6 had other factors that could have altered the results, such as the reflections of the back wall or the ceiling. 3.3. Clarity (C 80 )

Clarity results showed no major differences between the results of using platforms and using a flat audience area, in the case of the empty halls. Also, all the results either doubled or tripled the upper limit of the recommended range, which is between -5 dB to +5 dB (BS EN ISO 3382-1, 2009) (See figure 10). However, it is worth noting that when the audience was included, the results tended to be different between the scenarios and listeners that were located in an elevated platform had higher C 80 in comparison to those at a ground level.

Sc 2 Sc 6 Sc 10

5 7 9 11 13 15 17 19 21 23

C80 (DB)

1 2 3 4 5 6

RECEIVERS

Figure 10: C 80 results according to the change in platform height. Audience density – 2 pers/m²

3.4. Definition (D 50 )

In figure 11 it is possible to see a tendency of greater D 50 values when the platforms with 50 cm difference between platforms height was used. However, the effect lessened with the increase of

the platform height, i.e., when the platforms with 100 cm change in level were used (See Figure 11). This could indicate that there is an optimal height for the platforms where the perception of sound can be increased, but above the upper limit the effects start to reverse.

Sc 4 Sc 8 Sc 12

100

95

90

D50 (%)

85

80

75

70

1 2 3 4 5 6

RECEIVERS

Figure 11: D 50 results according to the change in platform height. Audience density – 6 pers/m²

The D 50 results presented in Figure 12 showed reductions between 50% to 70% at 1kHz to 4 kHz for receivers 3 to 5, which means that the effect of having a hall at full capacity can have a serious impact on the D 50 values at a frequency range crucial for speech intelligibility. Even though C 80 and D 50 can show similar information about the room, they have a different approach on the perception of sound. By presenting both results it was possible to see that the Definition can suffer a greater impact than Clarity when the audience density is 6 pers/m².

1 2 3 4 5 6 Receivers

100

90

80

70

D50 (%)

60

50

40

30

20

10

1 2 5 2 5 0 5 0 0 1 K 2 K 4 K 8 K 1 6 K

FREQUENCY (HZ)

Figure 12: D 50 results for Scenario 4 – flat audience area with an audience density of 6 pers/m²

3.5. Sound Pressure Levels (SPL) Figure 13 shows that the use of platforms caused a minimal reduction in SPL among receivers. However, adding the audience produced significant decreases in SPL. It is also possible to observe

that the increase of absorption from adding a standing audience did not decrease the SPL substantially. This trend is consistent with RT results, where doubling the audience density did not imply doubling the absorption. Additionally, the higher SPL for Receiver 1 compared to other receiver positions seen in figure 13, revealed that the sound reinforcement system, regarding the location and angle of the sound source, must be corrected to obtain a regular decrease of the SPLs when the distance between receiver and sound source is increased.

Sc 5 Sc 6 Sc 7 Sc 8

95

90

85

80

SPL (DBA)

75

70

65

60

55

50

1 2 3 4 5 6

RECEIVERS

Figure 13: SPL receiver variability with changing audience density but maintaining the platform height at 50 cm level change between platforms

4. CONCLUSIONS

The use of elevated platforms in the audience area can have a beneficial effect on acoustical objective parameters such as RT, EDT, C 80 , and D 50 when the venue includes the audience. These benefits are not obtained when the audience is not present. The expected benefits from audiences on raised platforms can be a lower RT and EDT values in comparison to the use of a flat audience area (of 20 ms and 60 ms respectively). Also, an increase in C 80 and D 50 values of 3 dB and 5% respectively could be expected. In contrast, the SPL does not seem to be affected by the use of raised audience platforms.

Overall the most optimal scenario for the acoustic parameters considered for a standing audience was the one that included the use of three platforms (with a between-platforms 50 cm height difference) and an audience density of 4 pers/m². This scenario improves the overall results for objective parameters related to the perception of sound quality, and also provides a satisfactory sightline.

For future investigations, it would be of interest to study the effects of more and smaller platforms with more differences in height level to stablish more resolution of the ideal elevation and platform size. Moreover, it is worth investigating the optimal angle audience areas can heave with reference to the stage line and the possibility of platforms featuring ramps instead of steps changes in height.

It is expected that the novel information and guidance provided by this research will assist acoustic designers, sound engineers and other relevant decision makers to improve the audio - visual experience of standing audiences.

5. ACKOWLEDGEMENTS We gratefully acknowledge Niels Werner Adelman-Larsen, whose research was the base and inspiration for this project. 6. REFERENCES

1. Adelman-Larsen, N. W. (2014) Rock and Pop Venues. Acoustic and Archictectural Design . Heidelberg: Springer. 2. Adelman-Larsen, N. W., Thompson, E. R. and Gade, A. C. (2010) ‘Suitable reverberation time for halls for rock and pop music’, The Journal of the Acoustical Society of America , 127(1), pp. 247–255. doi: 10.1121/1.3263611. 3. Alton Everest, F. (2001) Master Handbook of Acoustics . 4th ed. United States of America: McGraw-Hill. 4. British Standard Institution (2009) Bristish Standard. BS EN ISO 3382-1:2009. Acoustics - Measurement of room acoustic parameters. Part 1: Performance spaces . London: BSI 5. CATT-Acoustic™ v9.1 powered by TUCT™ v2 (2016) [Computer software] 6. Gripp, Karen W. et al. (2013) Handbook of Physical Measurements . Oxford: Oxford University Press. Available at: https://search.ebscohost.com/login.aspx?direct=true&db=e000xww&AN=644757&site=eho st-live&scope=site [Accessed: 8 July 2021]. 7. Health and Safety Executive (1999) The Event Safety Guide. A guide to health, safety and welfare at music and similar events. 2nd editio. HSE. Available at: http://www.qub.ac.uk/safety-reps/sr_webpages/safety_downloads/event_safety_guide.pdf. 8. Kuttruff, H. (2017) Room acoustics . 6th ed. CRC Pressm Taylor & Francis Group. Available at: https://search.ebscohost.com/login.aspx?direct=true&db=cat04679a&AN=lsb.b2622726&sit e=eds-live [Accessed: 13 April 2021]. 9. Neufert, E. (2007) Arte de proyectar en arquitectura. Barcelona: Editorial Gustavo Gili. 10. Norwegian Standard (2014) NS8178:2014 - Acoustic criteria for rooms and spaces for music rehearsal and performance . Oslo: NS. 11. Sánchez, R. (2014) Complejo de las artes . Architecture licentiateship dissertation, Universidad de Costa Rica. 12. Shabalina, E. (2013) The propagation of low frequency sound through an audience , Logos Verlag Berlin GmbH . Moscow State University. 13. Sketch Up Make vs 17.2.2555 64 bit (2017) [Computer software] 14. Statista Research Department (2021). Size of the live music audience in the United Kingdom (UK) from 2011 to 2018 (in million attendees) Available at: https://www.statista.com/statistics/278038/attendance-at-festivals-and-concerts-in-the-uk/ [Accessed: 10 June 2021].