Welcome to the new IOA website! Please reset your password to access your account.

The effects of workstation arrangements on the acoustical

performance of the architecture design studios. Hany Hossam Eldien 1 Department of Building Engineering, College of Architecture and Planning, Imam Abdulrahman Bin Faisal University, Dammam, Saudi Arabia Seraj Ali Alzaher 2 Department of Building Engineering, College of Architecture and Planning, Imam Abdulrahman Bin Faisal University, Dammam, Saudi Arabia Umaru Mohammed Bongwirnso 3 Department of Building Engineering, College of Architecture and Planning, Imam Abdulrahman Bin Faisal University, Dammam, Saudi Arabia

ABSTRACT Architecture design studios spaces needs special treatment for its acoustical environment. Interaction, communication, meetings, and various activities could influence concentration, which in turn, affects other aspects as quality of the architectural concepts and creation level. Workstation arrangement could consider as one of the elements which can improve the design studio acoustical conditions. In this paper, we evaluate the impact of 5 types of workstation arrangement with two different partitions heights (1.10m and 1.60m). The measurements were conducted in the College of Architecture, Imam Abdulrahman Bin Faisal University, KSA. Speech Transmission Index, STI in the nearest workstation, Distraction distance rD, privacy distance rP, A-weighted background noise level Lp, A, B and A-weighted SPL of speech at 4 meters Lp,A,S,4m have been measured according to ISO 3382-3. We found that U-shaped workstation arrangement can improve the acoustical environment the design studio. Furthermore, good results were observed using 1.60m partition height for all types of arrangements. Keywords: room acoustics, open plan office, speech intelligibility, speech privacy, ISO 3382-3 1. INTRODUCTION

Open-plan office design has lately received much research attention. Open-plan offices vary according to the number and height of partitions surrounding employees’ workspaces, spatial density (the amount of usable space per employee), openness, and architectural accessibility [1]. In open-plan offices the acoustical conditions can be influenced by different measures including the amount of sound absorption, the introduction of screens, and the level of background noise [2].

Open-plan offices’ success is divided and especially noise, annoyance, and acoustics in open- offices are debated in media and professionally. Guidelines on the room acoustics in open-plan

1 hehassam@iau.edu.sa 2 2180001807@iau.edu.sa 3 mbumaru@iau.edu.sa

20-24 august

offices have existed for years in many/some Nordic countries. Internationally, the ISO 3382-3 has established methods that carefully describes and gives recommendations to the acoustics in open- plan offices [3]. Some lab experiments by many researchers including Harvie-Clark and Larrieu 2019; Parizet, Chevret, and Kostallari 2017; Kostallari et al. 2017 demonstrated that, the decrease in performance can be objectively measured when people perform tasks when subject to noise containing intelligible speech. This is increasingly being used to determine to describe the classes of performance of the open-plan office. In open-plan offices, the occupants are affected by activities surrounding them. Insufficient acoustic conditions lead to distraction and a lack of speech privacy. Distraction weakens the ability to concentrate and reduces productivity, especially in tasks requiring cognitive resources. Low speech privacy prevents confidential or partly confidential conversations [7]. These metrics (as indicated in table 1) include those that are based on speech sound pressure level (SPLSpeech) – the spatial decay rate of speech per distance doubling (D2,S), A-weighted SPL of speech at a distance of 4 m (Lp,A,S,4,m); distraction distance (rD) based on spatial decay of the speech transmission index (STI); along with the A-weighted background noise level (Lp,A,B).

Tabl e 1: Acoustic classification of open-plan offices according to EN ISO 3382-3 [13]

Class DL 2,S L p,A,S,4m r D A ≥11 dB ≤46 dB ≤5 m B ≥9 dB ≤49 dB ≤8 m C ≥7 dB ≤52dB ≤11 m D <7 dB >52 dB >11 m There are several reasons for open-plan office’s grown popularity:

▪ reduction of office space and cost decline, ▪ more flexibility for organizational changes, ▪ more efficient workflow and communication, ▪ possibly enhancement of social facilitation and ▪ Supervision. With the above reasons, studies indicate the control of air quality in open-plan offices is very difficult as it is necessary to prevent the dispersion and depository of expiratory droplets that are generated locally [8]. However, the European Standard EN 15,251 addresses this problem with a holistic view because the energy consumption of buildings depends significantly on the criteria used for the indoor environment (temperature, ventilation, and lighting) and building (including equipment) design and operation. Annex E of the standard describes the criteria for noise (as shown in table 2) and shows the correlation between thermal comfort, energy performance, and noise. When the occupants open the windows in naturally ventilated buildings to obtain adequate ventilation, the equivalent sound pressure level shall be used to evaluate noise, including the periods when the windows are open, and the room is exposed to outdoor noise.

Table 2: Acoustic classification of open-plan offices according to indoor system noise criteria by EN15251.EN 15251.

Building

Type of Space

Sound Pressure Level dBA

Typical Range Default Design Value

Small Offices 30 to 40 35

Conference Rooms 30 to 40 35

Offices

Landscapes Offices 35 to 45 40

Office Cubicles 35 to 45 40

Many of the features of the traditional office environments such as; tall partitions, hard-walled offices, carpet, acoustical tile ceilings have the effect of controlling noise through absorption and isolation [9]. Whereas open office design eliminates a number of these features and their associated acoustical benefits thus having a negative acoustical impact (due to mechanical systems, sound transmission, and sound reflection respectively) include as shown in the figures a, b, and c.

a: mechanical Noise

b: Sound transmission

c: Sound reflection Figure 1: Negative acoustical impact in open offices 2. ACOUSTICAL PARAMETERS FOR OPEN PLAN OFFICES

2.1 Source and receiver positions

It is essential that calculations are made in a furnished office, so the workstations can be identified. Source and receiver positions are in workstations at a height of 1.2 m above the floor. The parameters can be divided into two groups, three parameters based on the A-weighted SPL (Sound Pressure Level) and three other parameters based on STI (Speech Transmission Index).

2.2 Parameters based on A-weighted SPL

When the source is radiating a noise signal with speech spectrum the A-weighted SPL is determined in several positions with increasing distance from the source. Thus, the spatial distribution of the A-weighted SPL can be displayed as a function of the distance using a logarithmic axis for the distance.

2.3 Parameters based on STI

The STI is determined in the same positions as the other measurements, i.e., from each source position along a line of receiver positions, all placed in relevant workstations. The impulse response method is preferred because it allows freedom in the choice of background noise, and in case the background noise is not the same in all positions the average overall positions must be used for the determination of STI. The interesting feature of these new distance parameters is that they depend on a combined effect of absorption, screens, and background noise. In Annex A of ISO 3382-3 [2] is suggested that a distraction distance greater than 10 m is typical for poor acoustical conditions whereas a value ≤ 5 m is suggested as a target value for good acoustical conditions. Problems associated with speech had been consistently reported, causing performance decrements for workers. In a simulated study [14] using the ISO 3382-3, the auditory assessment indicated multi-talker environment perceived distraction thus, lower cognitive performance compared to the one-talker environment. Valtteri H. and Jukka K. in a similar study, simulated 26 different offices regarding speech privacy. It was concluded that, work performance in concentration-demanding tasks has been found to improve with reducing intelligibility of irrelevant speech with a comfort criterion level range 30dB to 50dB [15]. A poor office acoustic environment leads to distraction of attention and reduction of concentration, and reduces occupants’ work productivity, especially in tasks requiring cognitive resources. H. Eldien and U. Bongwirnso carried out measurement using DIRAC in an architectural design studio with four variation of partition types. Being a student environment, Distraction weakens the ability

4 iS w)

to concentrate and reduces productivity, especially in tasks requiring cognitive resources. Low speech privacy prevents confidential or partly confidential conversations. It was deduced that, to obtained good performance, the partition hight should be at 1.5m either on front side or two sides [16] 3. MEASUREMENT PROCEDURE

3.1 Measurement conditions

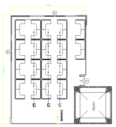
As show in figure 2 below, the acoustic measurements have been realized according to ISO 3382-3 [7] in furnished and unoccupied architecture design studio with 175,34m 2 area and located in College of Architecture and Planning, Imam Abdulrahman Bin Faisal University, KSA with fully operational HVAC. The design studio is furnished with 36 L shape workstations (1.5 m * 1.5m). The impact of 5 types of workstation arrangement was evaluated with two different partitions heights (1.10m and 1.60m), as shown in figure 18 and figure 19 and the finished materials are presented in the table 3 below.

Table 3: Finishing materials

Surface Material Description Walls Gypsum board, 2 layers with 32 mm Curtin wall Double glazing, 2mm glass, 10mm gap Ceiling 60cm *60cm DAMPA Tiles with sharp edge in steel Floor 60cm * 60cm Vinyl tiles on concrete Door Solid metal door with glass window 2.2 Measurements equipment

Type (a): 1.10m two sides partition

Type (b): 1.60m two sides partition

Figure 2: Negative acoustical impact in open offices

3.2 Measurements equipment

Acoustic measurements were made according to ISO 3382-3 [7]. Figure 3 illustrates the typical use of DIRAC to measure the acoustical parameters in an open-plan office. The system components are shown in Figure 4 and include the recommended USB Audio Interface ZE-0948. Brüel & Kjær Omni Source (Type 4292) Loudspeaker have been used. Sound source have been calibrated in the reverberation chamber situated in the College of Architecture Acoustics Lab

| § 2) |

Figure 3: Measurement’s equipment

The sound power spectrum of normal speech is used. The octave band values represent normal effort unisex speech (average of female and male speech). The octave band sound pressure levels at a distance of 1,0 m from the acoustic center of the sound source in the free field (Lp,S,1 m) are presented in Table 4. The resulting A-weighted sound pressure level is 57,4 dB. Since an omnidirectional source is preferred for the measurements, the sound pressure levels represent the average sound radiation in all directions from the source.

esa. | rraoe _ bat Eeoaad . he corergn | sare205Pe e200 2 fas co sr Ea ‘5 _[ 2000 8 a8 “a 7 {000 ms EG 2S Teaver | eae as a

Table 4: The linear sound pressure levels of speech at a distance of 1 m in free field from the speaker and A-weighting of octave bands.

3.3 Measurement positions

Measurements have been carried out along a line which crosses over workstations, as shown in table 5 for all study cases. The number of measurement positions in the line is 6. The microphone has been placed at 1,2 m above the floor. The sound source positioned at the centre of the discussion area and at the height of 1,2 m. The positions of loudspeaker and microphone were 0,5 m from tables and 2,0m from walls.

Sound source

Receiver

Figure 4: Position of sound source and receiver

Case 01

Case 02

Case 03

Case 04

Case 05

Figure 5: study cases of workstation arrangement 3.4 Measurement quantities

As recommended in ISO 3382-3, the measurement data had been converted into four simple single number quantities. The single number quantities that are determined are:

• Distraction distance, rD: distance from speaker where the speech transmission index falls

below 0,50 • Spatial decay rate of A-weighted SPL of speech, D2,S: rate of spatial decay of A-weighted

sound pressure level of speech per distance doubling • A-weighted SPL of speech at 4 m, Lp,A,S,4 m: nominal A-weighted sound pressure level of

normal speech at a distance of 4,0 m from the sound source • average A-weighted background noise level, Lp,A,B. • Privacy distance rP: distance from speaker where the speech transmission index falls below

0,20

_-_—_ Wika ~

Table 5: Speech Transmission Index (STI) Quality (IEC 60268-16)

Label STI Nilai STI Bad 0 - 0.3 Poor 0.3 - 0.45 Fair 0.45 - 0.6 Good 0.6 - 0.75 Excellent 0.75 - 1

Table 6: Standard value of open office space based on ISO 3382-3

ISO 3382-3 Parameters Good Poor Distraction distance, rD, i n m < 5 m > 10 m Privacy distance, rP, in m Spatial decay rate of A-we i ghte d SPL of speech, D2,S, in dB > 7 dB < 5 dB A-weighted SPL of speec h at 4 m et re s , L p ,A,S,4 m, in dB < 48 dB > 50 dB Average A-weighted background noi s e , Lp,A,B, in dB < 50 dB > 50 dB 4. RESULT AND DISCUSSION

Firstly, we will discuss the results obtained by Case (01); 1.10m two sides partition as indicated in figure 5 above. Figure 6 below shows the distribution curves for A-weighted sound pressure level of background noise (Lp, A,B), the A- weighted sound pressure level of speech (Lp,A,S) and the speech transmission index (STI).

Figure 6: Case (01), Measured Lp, A, B, Lp,A,S and STI distribution curves.

Table 7 below presents the measurement data according to ISO 3382-3. The average of STI in the nearest workstation is 0.69 which considered as excellent. In this case with technical background noise levels measured as 24.9 dBA, we need 10.4 meters to reach the point where STI = 0,5 since the average of Distraction distance, rD equal to 10.4 m. Table 7: Case (01) Results based on ISO 3382-3

Case 01

Line 01 Line 02 Line 03 Average A-weighted SPL of speech at 4 m e t re s , L p,A ,S,4 m, in dB 42.8 41.1 44 42.63 Spatial decay rate of A-weig ht e d SPL of s pe e ch, D2,S, in dB 6 6.1 6.3 6.13 Distraction distance, rD, in m 10.4 10 10.8 10.40 Privacy distance, rP, in m 20 20.2 19.3 19.83 STI nearest station 0.67 0.7 0.69 0.69 Average A-weighted backgr ound noi s e, L p,A,B, in dB 25 24.7 25 24.90

According to the standard value of open office space based on ISO 3382-3, this value is located between poor (> 10 m) and good (< 5 m). We found that D2,S average is 6.1 dB. The absolute D2,S-values for Case (01) on average are lower than D2,S = 7 dB, which according to ISO 3382-3 is an example on a target value for one of the parameters, which must be achieved in an open-plan office with good acoustic conditions. Lp, A,S,4m average 42.6 dB. This value can be considered as poor where the ISO 3382-3 target value for Lp, A,S,4m in offices with poor acoustic conditions is higher than 50 dB. The average of privacy distance rP is 19.8m. Thus, STI values less than 0,20 are difficult to be achieved where the maximum depth of the studio is 16.7m. According to the EN ISO 3382-3 Acoustic classification of open plan offices (see Table 1), 1.10m two sides partition achieved class D.

The impact of 1.60m two side partition (Case 01-P) is presented in Figure 7 and table 8. We can notice that STI decreases relatively slowly along the row of workplaces following the sound path. The average of STI is 0.69 which is greater than the average STI obtained by Case (01). Distraction distance, rD value average by this configuration is 10.76m. Is higher that obtained by Case (01).

Figure 7: Case (01-P), Measured Lp, A,S, Lp,A,S and STI distribution curves.

According to the standard value of open office space based on ISO 3382-3, this value is poor level (> 10 m). D2,S values are approximately the same values obtained by Case (01) where the average is 6.8 dB. The absolute D2,S-values are greater than 5dB and lower than 7dB. Therefore, and according to ISO 3382-3 target values, D2,S value is located between good and poor levels. Lp,A,S,4m average value is 43.96 dB which is less than 50 dB. Table 8: Case (01-P) Resu l t s ba s e d on IS O 3382-3

Case 01-P

Line 01 Line 02 Line 03 Average A-weighted SPL of speech at 4 m e t re s , L p,A ,S,4 m, in dB 41 41.8 42.2 41.67 Spatial decay rate of A-weig ht e d SPL of s pe e ch, D2,S, in dB 5.4 5.9 6.6 5.97 Distraction distance, rD, in m 10.1 10.3 10.6 10.33 Privacy distance, rP, in m 20.7 19.7 21.6 20.67 STI nearest station 0.67 0.71 0.64 0.67 Average A-weighted backgr ound noi s e, L p,A,B, in dB 25.5 26.1 25.5 25.70

Figure 8 and table 9 below indicates the result obtained by 1.10 m for two side partition (Case 02). Average A- weighted background noise, Lp, A,B 25.70, is approximately equal to that obtained by the previous cases. The average of STI is 0.67 (good) for the privacy.

Figure 8: Case (02), Measured Lp, A,S, Lp,A,S and STI distribution curves. As shown in Table 8 above, Distraction distance, the average of rD is 10.33m. According to EN ISO 3382-3 this value is located at Class C where it is lower than 11m [10]. As presented in Table 9 below, the average D2,S is 5.97 dB. This value is less than that obtained by Case (01) and (01-P). Based on ISO 3382-3, D2,S value is approximately poor (Class D). Lp,A,S,4m average value is 41.67 dB. This value is less than case (01) and (01-P). According to ISO 3382-3, A-weighted SPL of speech at 4 meters, Lp,A,S,4 obtained by partition Case (02) is very good and situated in class A. The average of privacy distance rP is 20.67 m. Table 9: Case (02) Results ba s e d on IS O 3382-3

Case 02

Line 01 Line 02 Line 03 Average A-weighted SPL of speech at 4 m e t re s , L p,A ,S,4 m, in dB 41 41.8 42.2 41.67 Spatial decay rate of A-weig ht e d SPL of s pe e ch, D2,S, in dB 5.4 5.9 6.6 5.97 Distraction distance, rD, in m 10.1 10.3 10.6 10.33 Privacy distance, rP, in m 20.7 19.7 21.6 20.67 STI nearest station 0.67 0.71 0.64 0.67 Average A-weighted backgr ound noi s e, L p,A,B, in dB 25.5 26.1 25.5 25.70 Figure 9 and table 10 below show the result obtained by 1.10 m for two side partition (Case 02-P). Average A- weighted background noise, Lp, A,B 25.70, is approximately equal to that obtained by the previous cases. The average of STI is 0.67 (good) for the privacy.

Figure 9: Case (02-P), measured Lp, A,S, Lp,A,S and STI distribution curves.

For this type, Distraction distance, rD average value equal 9.7m. According to EN ISO 3382-3 this value is located at Class C where it is lower than 11m [10]. Table 9 above, shows that the average of D2,S is 7.0 dB. This is due to the great value of background noise level (25.30 dBA). D2,S value could be considered good where the acceptable value must is 7dB. Lp,A,S,4m average value is

41.50 dB. For a good acoustic condition in open plan offices, ISO 3382-3 revealed that A-weighted SPL of speech at 4 meters must be lower than 48 dB. The average of privacy distance rP is 18.43 m which is greater than the depth of the studio (16.7m).

Table 10: Case (02-P) Res ul t s ba s e d on ISO 3382-3.

Case 02-P

Line 01 Line 02 Line 03 Average A-weighted SPL of speech at 4 m e t re s , L p,A ,S,4 m, in dB 40.5 42.3 41.7 41.50 Spatial decay rate of A-weig ht e d SPL of s pe e ch, D2,S, in dB 7 7 7 7.00 Distraction distance, rD, in m 9.4 10.7 9 9.70 Privacy distance, rP, in m 18.6 20.7 16 18.43 STI nearest station 0.68 0.7 0.65 0.68 Average A-weighted backgr ound noi s e, L p,A,B, in dB 25.3 25 25.6 25.30 In Figure 10 and table 11 we illustrate the result obtained by 1.10 m two sides partition (Case 03). Average A-weighted background noise, Lp,A,B, is 24.80 dB, approximately the same as previous cases. The average of STI is 0.67 which can be considered as good.

Figure 10: Case (03); Measured Lp, A, S, Lp, A, S and STI distribution curves. As shown in Table 11 below, the average of rD is 10.83m which according to EN ISO 3382-3 this value is located at Class C where it is lower than 11m [10]. As presented in Table 11, the average D2,S is 5.83 dB. This value is less than that obtained by cases (01 and 01-P) , (02 and 02-P). Based on ISO 3382-3, D2,S value is approximately good. Lp,A,S,4m average value is 41.43 dB. This value is less than cases (01 and 01-P) , (02 and 02-P). According to ISO 3382-3, A-weighted SPL of speech at 4 metres, Lp,A,S,4 obtained by partition Case (3) is very good and situated in class A. The average of privacy distance rP is 21.00 m. Table 11: Case (03) Resul t s ba s e d on IS O 3382-3.

Case 03

Line 01 Line 02 Line 03 Average A-weighted SPL of speech at 4 m e t re s , L p,A ,S,4 m, in dB 41.1 41.8 41.4 41.43 Spatial decay rate of A-weig ht e d SPL of s pe e ch, D2,S, in dB 5.6 5.6 6.3 5.83 Distraction distance, rD, in m 10.4 11.5 10.6 10.83 Privacy distance, rP, in m 20.2 21.4 21.4 21.00 STI nearest station 0.73 0.76 0.63 0.71 Average A-weighted backgr ound noi s e, L p,A,B, in dB 24.8 24.9 24.7 24.80

Figure 11 and table 12 show the result obtained by 1.60 m for two side partition (Case 03-P). Average A- weighted background noise, Lp, A, B 25.60, is approximately equal to that obtained by the previous cases. The average of STI is 0.67 (good) for the privacy.

Figure 11: Case (03-P); Measured Lp, A, S, Lp, A, S and STI distribution curves.

For this type, the average distraction distance (rD) value equal 10.07m. According to EN ISO 3382- 3 this value is located at Class C where it is lower than 11m [10]. Table 12 shows that the average of D2,S is 7.00 dB. This is due to the great value of background noise level (25.60 dBA). D2,S value could be considered good where the acceptable value must be 7dB. Lp,A,S,4m average value is 41.27 dB. For a good acoustic condition in open plan offices, ISO 3382-3 demonstrated that A- weighted SPL of speech at 4 meters must be lower than 48 dB. The average of privacy distance rP is 19.10 m which is greater than the depth of the studio (16.7m). Table 12: Case (03-P) Res ul t s ba s e d on ISO 3382-3.

Case 03-P

Line 01 Line 02 Line 03 Average A-weighted SPL of speech at 4 m e t re s , L p,A ,S,4 m, in dB 41.1 42 40.7 41.27 Spatial decay rate of A-weig ht e d SPL of s pe e ch, D2,S, in dB 6.9 6.9 7 7.00 Distraction distance, rD, in m 9.4 10.8 10 10.07 Privacy distance, rP, in m 18 19.7 19.6 19.10 STI nearest station 0.7 0.7 0.61 0.67 Average A-weighted backgr ound noi s e, L p,A,B, in dB 25.4 24.8 26.6 25.60

In Figure 12 and table 13 we demonstrate the result obtained by 1.10 m two sides partition (Case 04). Average A-weighted background noise, Lp,A,B, is 25.13 dB, approximately the same as previous cases. The average of STI is 0.63 which can be considered good for the privacy

Figure 12: Case (04); Measured Lp, A, S, Lp, A, S and STI distribution curves. As shown in Table 13, the average distraction distance, rD is 13.13m. According to EN ISO 3382-3 this value is located at Class D where it is greater than 11m [10]. As presented in Table 13, the average D2,S is 5.53 dB. This value is less than that obtained by cases (01 and 01-P), (02 and 02-P), (03 and 03-P). Based on ISO 3382-3, D2,S value is approximately good. Lp,A,S,4m average value is 41.80 dB. This value is greater than cases (01 and 01-P), (02 and

02-P), (03 and 03-P). According to ISO 3382-3, A-weighted SPL of speech at 4 meters, Lp,A,S,4 obtained by partition Case (04) is very good and situated in class A. The average of privacy distance rP is 29.77 m.

Table 13: Case (04) Resul t s ba s e d on IS O 3382-3.

Case 04

Line 01 Line 02 Line 03 Average A-weighted SPL of speech at 4 m e t re s , L p,A ,S,4 m, in dB 41.2 41.8 42.4 41.80 Spatial decay rate of A-weig ht e d SPL of s pe e ch, D2,S, in dB 4.8 6 5.8 5.53 Distraction distance, rD, in m 13.8 12.4 13.2 13.13 Privacy distance, rP, in m 30.1 25.6 33.6 29.77 STI nearest station 0.68 0.65 0.55 0.63 Average A-weighted backgr ound noi s e, L p,A,B, in dB 24.2 25.6 25.6 25.13

Figure 15 and table 20 show the result obtained by 1.60 m for two side partition (Case (4P)). Average A- weighted background noise, Lp, A,B 25.17, is approximately equal to that obtained by the previous cases The average of STI is 0.63 which can be considered good for the privacy.

Figure 13: Case (04-P); Measured Lp, A, S, Lp, A, S and STI distribution curves.

For this type, the average distraction distance, rD records a value equal 13.10m. According to EN ISO 3382-3 this value is located at Class D where it is greater than 11m [10]. Table 14 shows that the average of D2,S is 5.60 dB. This is due to the great value of background noise level (25.17 dBA). D2,S value is less than the acceptable value must is 7dB. Lp,A,S,4m average value is 41.87 dB. For a good acoustic condition in open plan offices, ISO 3382-3 demonstrated that A-weighted SPL of speech at 4 meters must be lower than 48 dB. The average of privacy distance rP is 29.57m which is greater than the depth of the studio (16.7m). Table 14: Case (04-P) Res ul t s ba s e d on ISO 3382-3.

Case 04-P

Line 01 Line 02 Line 03 Average A-weighted SPL of speech at 4 m e t re s , L p,A ,S,4 m, in dB 41.2 41.8 42.6 41.87 Spatial decay rate of A-weig ht e d SPL of s pe e ch, D2,S, in dB 4.8 6 6 5.60 Distraction distance, rD, in m 13.8 12.4 13.1 13.10 Privacy distance, rP, in m 30.1 25.6 33 29.57 STI nearest station 0.68 0.65 0.55 0.63 Average A-weighted backgr ound noi s e, L p,A,B, in dB 24.3 25.6 25.6 25.17 In Figure 14 and table 15 we demonstrate the result obtained by 1.10 m two sides partition (Case 05). Average A-weighted background noise, Lp,A,B, is 24.63 dB, approximately the same as previous cases. The average of STI is 0.61 which can be considered as good for the privacy.

Figure 14: Case (05); Measured Lp, A, S, Lp, A, S and STI distribution curves. As shown in Table 15, Distraction distance, the average of rD is 11.47m. According to EN ISO 3382-3 this value is located at Class D where it is greater than 11m [10]. As presented in Table 15, the average D2,S is 6.90 dB. This value is less than that obtained by cases (01 and 01-P), (02 and 02-P), (03 and 03-P). Based on ISO 3382-3, D2,S value is approximately good. Lp,A,S,4m average value is 42.97 dB. This value is greater than cases (01 and 01-P), (02 and 02-P), (03 and 03-P), (05 and 05-P). According to ISO 3382-3, A-weighted SPL of speech at 4 meters, Lp,A,S,4 obtained by partition Case (05) is very good and situated in class A. The average of privacy distance rP is 26.70 m Table 15: Case (05) Resul t s ba s e d on IS O 3382-3.

Case 05

Line 01 Line 02 Line 03 Average A-weighted SPL of speech at 4 m e t re s , L p,A ,S,4 m, in dB 42.7 42 44.2 42.97 Spatial decay rate of A-weig ht e d SPL of s pe e ch, D2,S, in dB 6.7 7 7 6.90 Distraction distance, rD, in m 12 11 11.4 11.47 Privacy distance, rP, in m 38.1 21.5 20.5 26.70 STI nearest station 0.57 0.66 0.6 0.61 Average A-weighted backgr ound noi s e, L p,A,B, in dB 25.4 24 24.5 24.63 Figure 15 and table 16 show the result obtained by 1.60 m for two side partition (Case 05-P). Average A- weighted background noise, Lp, A,B 24.00, is approximately equal to that obtained by the previous cases. The average of STI is 0.64 which can be considered as good for the privacy.

Figure 15: Case (05-P); Measured Lp, A, S, Lp, A, S and STI distribution curves. For this type, the average distraction distance, rD equal 10.47m. According to EN ISO 3382-3 this value is located at Class C where it is lower than 11m [10]. Table 16 shows that the average of D2,S is 7.67 dB. This is due to the great value of background noise level (24.00 dBA). D2,S value could

be considered good where the acceptable value must be 7dB. Lp,A,S,4m average value is 44.30 dB. For a good acoustic condition in open plan offices, ISO 3382-3 demonstrated that A-weighted SPL of speech at 4 meters must be lower than 48 dB. The average of privacy distance rP is 19.83m which is greater than the depth of the studio (16.7m). Table 16: Case (05-P) Results based on ISO 3382-3.

Case 05-P

Line 01 Line 02 Line 03 Average A-weighted SPL of speech at 4 m e t re s , L p,A ,S,4 m, in dB 43.7 42.1 47.1 44.30 Spatial decay rate of A-weig ht e d SPL of s pe e ch, D2,S, in dB 7.4 7.6 8 7.67 Distraction distance, rD, in m 11.1 9.8 10.5 10.47 Privacy distance, rP, in m 23.4 17.9 18.2 19.83 STI nearest station 0.67 0.63 0.61 0.64 Average A-weighted backgr ound noi s e, L p,A,B, in dB 24 24 24 24.00

5. CONCLUSIONS

Measurements of five (05) types of arrangement of furniture with different heights of partitions in open-plan offices to evaluate speech privacy parameters according to ISO 3382-3 has been performed. We found that the arrangement of the furniture and modification of partition height can slightly improve the acoustic condition of the open plan offices. According to ISO 3382-3, Open plan offices with good acoustic conditions must have target values: D2,S ≥ 7 dB, Lp,A,S,4 m ≤ 48 dB, and rD ≤ 5 m.

The sound power level of the loudspeaker should be sufficiently high in each octave band so that the sound pressure level exceeds the background noise level by 6 dB at the most distant measurement point. This calibrated output of pink noise is used when spatial sound distribution of the A-weighted SPL of speech is determined in the open plan office. Lp,A,S,4m value classification:

• ≤ 46 considered (class A), • ≤ 49 considered (class B), • ≤ 52 considered (class C), • ˃ 52 considered (class D).

Shown in table 17 Lp,A,S,4m for all cases. Table 17: ISO 3382-3 Parameters values obtained by all cases (red numbers indicate the best values)

Case NO. Lp,A,S,4m D2,S rD rP STI Lp,A,B Case 1 A D C 19.83 0.69 24.90 Case 1P A D C 19.63 0.69 24.37 Case 2 A D C 20.67 0.67 25.70 ➢ Case 2P A C C 18.43 0.68 25.30 Case 3 A D C 21.00 0.71 24.80 ➢ Case 3P A C C 19.10 0.67 25.60 Case 4 A D D 29.77 0.63 25.13 Case 4P A D D 29.57 0.63 25.17 Case 5 A D D 26.7 0.61 24.63 ➢ Case 5P A C C 19.83 0.64 24.00

For all cases, A- weighted SPL of speech at 4 meters is varies approximately from 41 dB to 43 dB. This value is good for Lp,A,S,4m (class A). Spatial decay rate of A-weighted SPL of speech, D2,S, ranges from 5.5 to 7.6 dB which are classified to (class C) and (class D). The best value can be achieved by cases (02-P), (03-P) and (05-P). The higher the STI value indicates the better the voice clarity when the acoustic privacy speech is required, the STI value should be low [12]. Consequently, the best STI value have been obtained by cases (05). Generally, 1.60 m for two side partition, type (02-P), have the best results. In our case, to improve the results, it is required to treat the finishing material in both walls and ceiling by sound absorbed materials.

6. REFERENCES

[1] K. Yıldırım, E. Güneş, and G. P. Yilmaz, “The effects of workstation partition heights on employees’ perceptions in open-plan offices,” J. Corp. Real Estate, vol. 21, no. 2, pp. 165–183, 2019, doi: 10.1108/JCRE-03-2018-0010.

[2] J. H. Rindel and C. L. Christensen, “Acoustical simulation of open-plan offices according to ISO 3382-3,” no. May 2015.

[3] C. Møller, C. M. Petersen, and B. Rasmussen, “Acoustic design of open-plan offices and comparison of requirements in the Nordic countries Acoustic design of open-plan offices and comparison of requirements in the Nordic countries Methods to describe acoustics in open-plan offices – ISO 3382-3,” pp. 0–7, 2018.

[4] J. Harvie-Clark and F. Larrieu, “Iso 3382-3: Necessary but not sufficient. a new approach to acoustic design for activity-based-working offices,” Proc. Inst. Acoust., vol. 41, no. September, pp. 227–236, 2019.

[5] E. Parizet, P. Chevret, and K. Kostallari, “A simple sound metric for evaluating sound annoyance in open-plan offices,” J. Acoust. Soc. Am., vol. 141, no. 5, pp. 3966–3966, 2017, doi: 10.1121/1.4989029.

[6] K. Kostallari, E. Parizet, P. Chevret, J. N. Amato, and E. Galy, “Irrelevant speech effect in open plan offices: A laboratory study,” 24th Int. Congr. Sound Vib. ICSV 2017, no. July 2017.

[7] ISO 3382-3:2020, “Acoustics - Measurement of Room Acoustic Parameters - Part 3: Open plan offices,” 2012. https://www.iso.org/obp/ui/#iso:std:iso:3382:-3:ed-1:v1:en.

[8] S. Delle Macchie, S. Secchi, and G. Cellai, “Acoustic issues in open plan offices: A typological analysis,” Buildings, vol. 8, no. 11, 2018, doi: 10.3390/buildings8110161.

[9] “Sound Control for Open Offices,” vol. 01, no. 81, p. 2016, 2016.

[10] H. Thabrani, I. Susilo, and Suyatno, “Evaluation of acoustic performance open-plan office at Jawa Pos building based on ISO 3382-3,” J. Phys. Conf. Ser., vol. 1075, no. 1, 2018, doi: 10.1088/1742-6596/1075/1/012050.

[12] H. Thabrani, I. Susilo, and Suyatno, “Evaluation of acoustic performance open-plan office at Jawa Pos building based on ISO 3382-3,” J. Phys. Conf. Ser., vol. 1075, no. 1, 2018, doi: 10.1088/1742-6596/1075/1/012050.

[13] V. Hongisto and J. Keränen, “Open plan offices New Finnish room acoustic regulations,” Euronoise pp. 1147 1152, 2018.

[14] M. Yadav, J. Kim, D. Cabrera, and R. de Dear, “Auditory distraction in open-plan office environments: The effect of multi-talker acoustics,” Appl. Acoust., vol. 126, pp. 68–80, 2017, doi: 10.1016/j.apacoust.2017.05.011.

[15] V. Hongisto, “applied sciences Comfort Distance — A Single-Number Quantity Describing Spatial Attenuation in Open-Plan Offices,” no. Figure 1, pp. 1–10, 2021. [16] H. H. Eldien and U. M. Bongwirnso, “Impact of partition types on architecture design studios acoustical environment,” Proc. INTER-NOISE 2021 - 2021 Int. Congr. Expo. Noise Control Eng., pp. 1–11, 2021, doi: 10.3397/IN-2021-3328.