Welcome to the new IOA website! Please reset your password to access your account.

Structureborne noise transmission from a sports court John LoVerde 1 Wayland Dong 2 Samantha Rawlings 3 Veneklasen Associates, Inc. 1711 16 th Street, Santa Monica, CA 90404 USA

ABSTRACT The authors recently investigated a multifamily high-rise building that included a sports court. Noise from bouncing basketballs and similar sources generated undesirable noise transmission in adjacent units. While that was not surprising, the pattern of transmission throughout the building was not as expected. Vibration measurements taken in the building are compared to predicted impact flanking transmission to evaluate the vibration paths through the building. While sports courts are not that common, the results are also applicable to impacts from fitness center sources, and even to prediction of impact noise in lateral and diagonal directions.

1. INTRODUCTION

The authors were requested to evaluate audible impacts from basketball activity in a sport court of a high-rise multifamily building with post-tensioned concrete structure. The sport court is located on the seventh floor of the building, with residential units both above the sport court and adjacent to it. Lower floors had non-residential uses.

Audible and noticeable impacts were observed within the eighth-floor unit directly above the sport court, which was the impetus for the investigation. During the course of the investigation, it was observed that noise from basketball impacts were audible, although much less noticeable, in other units on the eighth and ninth floors. The authors undertook structural vibration propagation measurements to understand the transfer mechanism from the sport court floor to residential units on the seventh, eighth, and ninth floors.

2. PROJECT DESCRIPTION

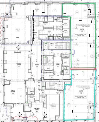
The building consists of a 42-story post-tensioned concrete structure. There are 600 mm (24 in.) shear walls surrounding the building core on four sides, as well as a 750 mm (30 in.) fin shear wall that extends perpendicularly from the core towards the east façade of the building.

This fin shear wall forms the north end of the sport court boundary on the seventh floor. There is a single residential unit (7D) on the seventh floor, located approximately 9m away north from the sport court and shear wall (see Figure 1). There is an auxiliary room between the sport court and unit

1 jloverde@veneklasen.com 2 wdong@veneklasen.com 3 srawlings@veneklasen.com

7D. At the sport court the post-tensioned slab is 250mm (10 in.) thick; residential unit 7D and seventh- floor auxiliary room are located on a 200 mm (8 in.) thick post-tensioned slab

Levels 8 and 9 are residential floors with similar floor plans. Residential units 8D and 9D are north of the shear wall; units 8E and 9E are south of the shear wall and directly over the sports court. The eighth-floor residential units (8D and 8E) are on a 230 mm (9 in.) post-tensioned slab, and the ninth- floor units are located on a 200 mm (8 in.) post-tensioned slab. See Figure 2 and Figure 3. The fin shear wall is outlined in red and the sports court in blue. Impact locations (source locations) are indicated by the yellow/red circles.

7D

Figure 1 - Sport Court Floor Plan

8D

9D

8E

9E

Figure 2 - Level Eight Floor Plan

Figure 3 - Level Nine Floor Plan

The sport court floor assembly consists of the following: Maple hardwood sport court surface over two layers of plywood subfloor, 11mm (7/16 in.) rubber isolation mounts, 38mm (1-1/2 in.) thick gypsum concrete topping slab, and 25mm (1 in.) dimpled rubber matting over the post-tensioned slab. Refer to Figure 4 and Figure 5.

PERIMETER ISOLATION STRIP THRESHOLD [ATHLETIC FLOORING; SEE INTERIORS ° 7 @)UavERs 172 PLWD, SUBFLOOR 16: RESLIENT PAD /CUSHION vr ToP-5 anes STRUCTURAL SLAB | cease ee Level 7 ? vf * 882" - 0' nd ‘SOLID STOP BLOCK

Figure 4 - Section View, Sport Court Flooring System

Figure 5. Sports court side view (left) showing hardwood finish floor, plywood subfloor, and

resilient cushions; bottom view (right).

3. MEASUREMENTS AND OBSERVATIONS

3.1. Observations

Noise from basketball impacts were observed as clearly audible within the unit directly above the sport court (8E), with greatest audibility within the living room. Impacts were also audible within the guest bedroom of the same unit, which is on the shear wall. The audible impacts were low frequency in nature, sounding like thudding. High-frequency noise (i.e. noise generated by contact between the flooring and basketball surface) was not observed.

In other units, basketball impacts on the sport court surface were audible, but generally not noticeable without focused listening. These impacts were not readily observed within the unit on the same floor as the sport court (7D), within the unit diagonally above the sport court (8D), nor either of the units on level 9 (9D or 9E).

3.2. Measurements

In order to investigate structural vibration propagation within the building, measurements were completed at several locations in the building. This paper focuses on two source locations on the seventh floor. One location was on the sport court floor, the other on the building structural slab. Both locations were approximately 1 meter (3 ft.) from the fin shear wall (shown as yellow circles on Figure 1).

Receiving level measurements were completed within residential units on levels seven, eight, and nine. They were completed within units 7D, 8D, 9D, 8E, and 9E. It should be noted that the D units are located on the north side of the auxiliary room and shear wall; receiving locations for units 8D and 9D were directly above the source location. The E units are located on the south side of the shear wall, directly above the sport court, and are therefore diagonally above the source location. Unit 7D is located on the same level and structural slab as the source location, at a distance of approximately 12.2m (40 ft.) from the source location, laterally.

Noise and vibration measurements were performed at the receiver locations; only the vibration data is discussed here. A basketball dropped from a height of approximately 1.5 meters (5 ft.) was used as the source; 5 drops were averaged for each position. Measurements were also performed with the tapping machine and rubber ball; this data is not presented here but does not change any of the

conclusions. Measured levels are shown in Figure 6 below, for both the guest bedroom (GBR) and living room (LR). The dotted lines indicate background-limited measurements and understood to represent a maximum potential level.

70

65

Accleration (dB re 1um/s 2 )

60

55

50

45

40

31.5 40 50 63 80 100

Frequency (Hz)

Sport Court 8E GBR Auxiliary 8E GBR

Sport Court 8E LR Auxiliary 8E LR

Figure 6 - Measured Vibration Levels, Unit 8E

3.3. Analysis

The measured levels validate the observations that impact noise is clearly audible at low frequencies. The vibration levels are higher on level 8 and 9 than on level 7 (the source level), which is unusual. However, the presence and mass of the shear wall is also unusual. Calculations of the vibration level difference across the structural junctions were completed using the methodology described in ISO 12354-1 [1]. This method suggests a vibration level difference of almost 25 dB from floor to floor across the fin shear wall, with minimal frequency dependance. The unusually thick shear wall shields the vibration from Unit 7D.

Figure 7 shows the reduction in level for basketball impacts on the sport court compared to level 7. (For unit 9E living room, a single data point is shown since there was insufficient signal-to-noise at other frequencies to calculate the reduction in level.) One might expect to see a similar reduction in level from the eighth floor to the ninth floor as from the seventh to eighth floors. However, the transmission to unit 9D was very similar to 8D. Again, the thick shear wall may be the reason. The calculated junction loss going up the shear wall across a floor slab is just a few dB; if the shear wall is a significant vibration path, only a small reduction between floors is expected.

One might also expect that the structural response to be similar for excitation on the floor on either side of the shear wall. The structure is not symmetric but does not appear too dissimilar. However, measurements indicate that vibration levels are higher for basketball impacts on the south side of the shear wall (on the sport court flooring system) than on the structural slab on the north side of the shear wall. When comparing the measured levels for each source location in each room, the measured levels for impacts on the sport court system exceed the measured levels on the bare slab (auxiliary room) by approximately 5-7 dB on average and as much as 10 dB at some frequencies (see Figure 6 and Figure 8).

While it is possible for a resilient floor system to amplify impacts at certain frequencies, the magnitude and spectral shape make this unlikely. Another possibility is that there is significantly greater structural transmission between floors on the south side of the shear wall compared to the

north side. The south impact location is closer to columns and to a curtain wall, although the differences do not seem enough to cause the observed differences. The mechanism remains unclear.

25

Difference in Level (Acceleration dB re 1 um/s 2 )

20

15

10

5

0

31.5 40 50 63 80 100

Frequency (Hz)

8D BR 8E GBR 9E LR 9D BR

Figure 7: Vibration Level Reduction Compared to Unit 7D, Basketball Impacts on Sport Court

65

60

Accleration (dB re 1um/s 2 )

55

50

45

40

35

31.5 40 50 63 80 100

Frequency (Hz)

Sport Court 9E LR Auxiliary 9E LR

Figure 8 - Measured Vibration Levels, Unit 9E Living Room

4. CONCLUSIONS

The measurement program confirmed that noise from basketball impacts in residential units above the seventh-floor sport court is audible. The measured levels within those units suggest unusual and unexpected vibration transmission paths between the sport court and the residential units above.

We observed a relative lack of reduction in level measured between the eighth- and ninth-floor residential units, as well as the low levels measured in the seventh-floor unit laterally adjacent to the sport court. Based on the vibration level difference predicted across the junction as calculated using

ISO 12354, the unusually thick shear wall may account for these unexpected results, blocking the lateral transmission of vibration and being transmitted more efficiently vertically in the building.

The increased vibration transmission between impacts on the south side of the shear wall on the sports court flooring compared to the north side of the shear wall on the structural slab remains unexplained.

5. ACKNOWLEDGEMENTS

Portions of this research were funded by the Paul S. Veneklasen Research Foundation.

6. REFERENCES

[1] “ISO 12354-1. Building acoustics - Estimation of acoustic performance of buildings from the

performance of elements Part 1: Airborne sound insulation between rooms.”